Stacje przygotowania i dozowania polielektrolitów proszkowych
Stacja przygotowania polielektrolitów jest zestawem urządzeń przeznaczonym do automatycznego przygotowania,
magazynowania i ciągłego dozowania roztworów polielektrolitów, z możliwością płynnej regulacji ilości dozowanego roztworu.
Zalety:
- zapewnienie produkcji polielektrolitów dobrej jakości w systemie ,
- prosta budowa i obsługa.
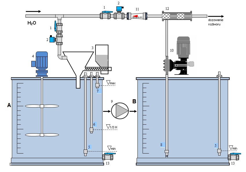
Stacja przygotowania polielektrolitów składa się z dwóch zbiorników polietylenowych w układzie pionowym lub poziomym.
Zbiornik A służy do rozcieńczania sproszkowanego polielektrolitu i jego dojrzewania, natomiast zbiornik B jest magazynem gotowego roztworu i z niego odbywa się dozowanie.
Zestaw dwuzbiornikowy w układzie poziomym

1 - zawór ręczny
2 - zawór elektromagnetyczny
3 - dozownik materiałów sypkich
4 - mieszadło wolnoobrotowe typ MW
5 - czujniki poziomu min
6 - czujnik poziomu 1/3 H
7 - czujniki poziomu max
8 - linia ssąca pompy
9 - pompa transferowa
10 - pompa dozująca z ręczną lub automatyczną regulacją
11 - wskaźnik przepływu (opcja)
12 - mieszadło statyczne (opcja)
13 - zawór upustowy
Działanie:
Urządzenie pracuje w sposób ciągły, zautomatyzowany, nadzorowany przez własne urządzenie sterownicze.Po uruchomieniu urządzenia, do zbiornika A, przez zawory 1 i 2, zaczyna napływać woda. Prędkość napływu można regulować zaworem 1. Dozownik ślimakowy automatycznie podaje sproszkowany polielektrolit do zbiornika rozpuszczania A.Stężenie roztworu reguluje się czasem dozowania proszku. W zbiorniku rozpuszczania roztwór jest homogenizowany przy pomocy mieszadła wolnoobrotowego dwuwirnikowego. Czas homogenizacji jest nastawiany zgodnie z wymogami producentów polielektrolitów. Po tym czasie automatycznie otwiera się zawór elektromagnetyczny (dla zestawu pionowego) lub załącza się pompa transferowa (dla zestawu poziomego) powodując przelanie gotowego roztworu do zbiornika magazynowego B. Proces ten nastąpi wtedy, kiedy zbiornik magazynowy będzie opróżniony na tyle, że zmieści się w nim przygotowany roztwór. Warunek ten kontroluje układ czujników poziomu. Roztwór podawany jest przez pompę dozującą z płynną regulacją wydajności. Wydajność może być regulowana ręcznie lub automatycznie: regulacja proporcjonalna do parametru obiektowego (np. przepływ, zawartość określonych zanieczyszczeń itp.). Może to być też odmierzanie zaprogramowanych dawek.Zawór upustowy umożliwia opróżnienie zbiornika z roztworu, który stracił wymagane parametry. Stacja przygotowania polielektrolitu umożliwia również dalsze rozrzedzanie przygotowanego roztworu w osobnym układzie. Stopień rozrzedzenia można kontrolować przy pomocy zainstalowanych przepływomierzy i regulować.
